Central Flats, 1001 Belknap Street - 525, Superior, WI 54880
Central Flats, 1001 Belknap Street - 525, Superior, WI 54880
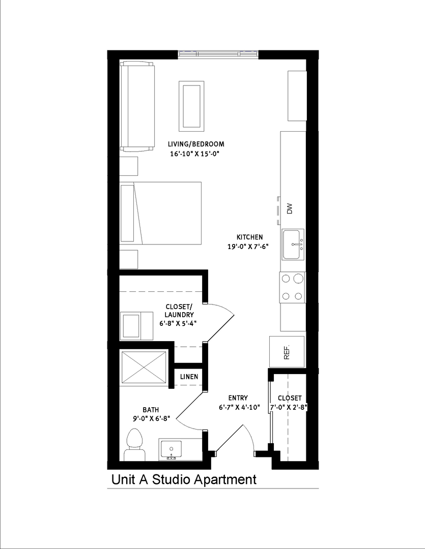
Studio - Unit S.1
This S.1 Unit is a multi-functional space—with room for living during the day and a comfortable space to stretch out when it is time for bed. This studio apartment comes with a modern kitchen with energy efficient, stainless-steel appliances, granite countertops, ample storage, laminate wood flooring, modern fixtures, stackable washer and dryer, window coverings, ceiling fan, large closet, high-speed internet free of charge.
Central Flats blends of the best of historic Superior with modern convenience. This new 5-story, multi-family, mixed-use development features 134 units, ground-level parking, and commercial retail space. Many of the apartments serve up views of downtown Superior and beautiful horizon views of Lake Superior, or for the more socially conscious— an open-air deck located within the center of the building. This modern construction is located near the heart of downtown Superior, within a short walk of the University of Wisconsin-Superior campus, the City of Superior Government Center and Lake Superior.
Central Flats blends of the best of historic Superior with modern convenience. This new 5-story, multi-family, mixed-use development features 134 units, ground-level parking, and commercial retail space. Many of the apartments serve up views of downtown Superior and beautiful horizon views of Lake Superior, or for the more socially conscious— an open-air deck located within the center of the building. This modern construction is located near the heart of downtown Superior, within a short walk of the University of Wisconsin-Superior campus, the City of Superior Government Center and Lake Superior.
Contact us:

















